Prédio
Porto, Cedofeita, santo ildefonso, sé, miragaia, são nicolau e vitória
Publicado às 04:36h, 3 Abril 2024
Anúncio: 26043764190
Referência anunciante: NI2024-V060
1.500.000€
1.500.000€
Enviar email
Estado
Usado
Área útil
600 m²
Classificação energética
C
Ano de construção
1950
Características
ArrumosBanheiraBase de DucheBomba de CalorCasa de Banho CompletaCozinha EquipadaDespensaEstacionamento ExteriorJardimLavandariaLogradouroRoupeirosSalão de FestasTerraçoVarandaVista Cidade
Descrição
Prédio em muito bom estado de conservação, encontra-se localizado numa das zonas mais emblemáticas da Cidade Invicta, dotado de uma excelente proximidade aos transportes públicos e respetivas acessibilidades para toda a Área Metropolitana do Porto.
Não tem garagem, mas existe nas suas imediações vários parques de estacionamento.
LOCALIZAÇÃO:
- Estação de metro do Marquês a 50 metros.
- Hipermercado Pingo Doce do Marquês a 250 metros.
- Hospital de Santa Maria a 650 metros.
- Escola Artística Soares dos Reis a 1,2km.
- Mercado do Bolhão a 1,5km.
- Avenida dos Aliados a 1,6km.
- Loja do Cidadão do Porto a 1,7km.
- Sé do Porto a 2,3km.
- Cais da Ribeira do Porto a 2,8km.
- Aeroporto Internacional do Porto a 15km.
IMÓVEL:
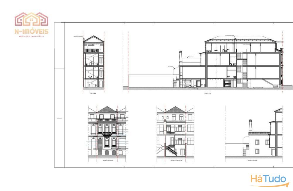
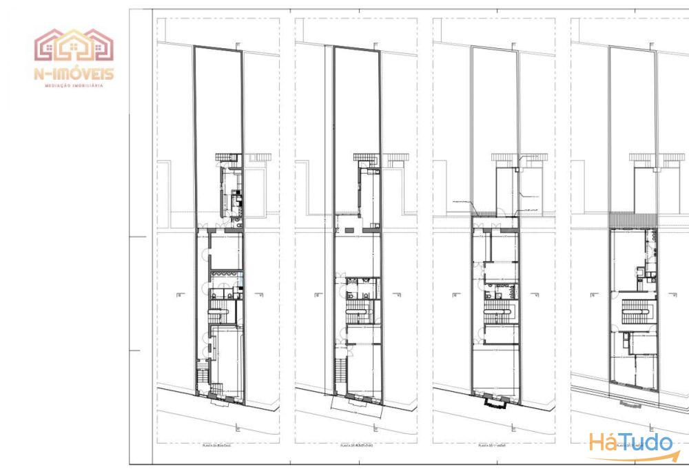
- Prédio de 4 pisos com mais de 600m2 de área bruta privativa.
- É composto por 7 grandes divisões, um escritório, 2 despensas, 2 casas de banho completas, 3 WC, uma cozinha equipada e 3 copas.
- Terraço privativo com acesso direto ao logradouro exterior.
DETALHES:
- Orientação solar: Nascente e Poente.
- Construção em granito e betão armado, que preservou a traça tradicional da arquitetura portuguesa.
- Existe a possibilidade de conversão para 2 Apartamentos T1 ou T1+1 por cada um dos 4 andares.
N-IMÓVEIS, a sua escolha certa desde 2015!
ATIVIDADE:
- Desenvolvemos a nossa atividade na Gestão de Propriedades e Investimento Imobiliário.
RELAÇÃO:
- Estabelecemos uma relação privilegiada com os nossos clientes, através da mediação imobiliária devidamente licenciada na compra, venda e arrendamento de imóveis.
NEGÓCIO:
- Trabalhamos de forma proativa todos os momentos do processo, para estruturar a melhor alternativa de negócio.
QUALIDADE:
- Os pensamentos comuns resultam em projetos de qualidade transformadores com o objetivo conjunto de realização pessoal.
COMPROMISSO:
- É para nós considerado o princípio base da nossa empresa, o compromisso que todos os clientes são tratados com a máxima dedicação, rumo a um resultado de excelência.
PROMOÇÃO:
- O profissionalismo está de mão dadas com a transparência nos nossos serviços diferenciadores, na promoção da venda do seu imóvel e na representação de quem vai comprar ou arrendar.
Venha visitar com a N-IMÓVEIS e sinta-se em casa!
Prédio em muito bom estado de conservação, encontra-se localizado numa das zonas mais emblemáticas da Cidade Invicta, dotado de uma excelente proximidade aos transportes públicos e respetivas acessibilidades para toda a Área Metropolitana do Porto.
Não tem garagem, mas existe nas suas imediações vários parques de estacionamento.
LOCALIZAÇÃO:
- Estação de metro do Marquês a 50 metros.
- Hipermercado Pingo Doce do Marquês a 250 metros.
- Hospital de Santa Maria a 650 metros.
- Escola Artística Soares dos Reis a 1,2km.
- Mercado do Bolhão a 1,5km.
- Avenida dos Aliados a 1,6km.
- Loja do Cidadão do Porto a 1,7km.
- Sé do Porto a 2,3km.
- Cais da Ribeira do Porto a 2,8km.
- Aeroporto Internacional do Porto a 15km.
IMÓVEL:
- Prédio de 4 pisos com mais de 600m2 de área bruta privativa.
- É composto por 7 grandes divisões, um escritório, 2 despensas, 2 casas de banho completas, 3 WC, uma cozinha equipada e 3 copas.
- Terraço privativo com acesso direto ao logradouro exterior.
DETALHES:
- Orientação solar: Nascente e Poente.
- Construção em granito e betão armado, que preservou a traça tradicional da arquitetura portuguesa.
- Existe a possibilidade de conversão para 2 Apartamentos T1 ou T1+1 por cada um dos 4 andares.
N-IMÓVEIS, a sua escolha certa desde 2015!
ATIVIDADE:
- Desenvolvemos a nossa atividade na Gestão de Propriedades e Investimento Imobiliário.
RELAÇÃO:
- Estabelecemos uma relação privilegiada com os nossos clientes, através da mediação imobiliária devidamente licenciada na compra, venda e arrendamento de imóveis.
NEGÓCIO:
- Trabalhamos de forma proativa todos os momentos do processo, para estruturar a melhor alternativa de negócio.
QUALIDADE:
- Os pensamentos comuns resultam em projetos de qualidade transformadores com o objetivo conjunto de realização pessoal.
COMPROMISSO:
- É para nós considerado o princípio base da nossa empresa, o compromisso que todos os clientes são tratados com a máxima dedicação, rumo a um resultado de excelência.
PROMOÇÃO:
- O profissionalismo está de mão dadas com a transparência nos nossos serviços diferenciadores, na promoção da venda do seu imóvel e na representação de quem vai comprar ou arrendar.
Venha visitar com a N-IMÓVEIS e sinta-se em casa!
Não tem garagem, mas existe nas suas imediações vários parques de estacionamento.
LOCALIZAÇÃO:
- Estação de metro do Marquês a 50 metros.
- Hipermercado Pingo Doce do Marquês a 250 metros.
- Hospital de Santa Maria a 650 metros.
- Escola Artística Soares dos Reis a 1,2km.
- Mercado do Bolhão a 1,5km.
- Avenida dos Aliados a 1,6km.
- Loja do Cidadão do Porto a 1,7km.
- Sé do Porto a 2,3km.
- Cais da Ribeira do Porto a 2,8km.
- Aeroporto Internacional do Porto a 15km.
IMÓVEL:
- Prédio de 4 pisos com mais de 600m2 de área bruta privativa.
- É composto por 7 grandes divisões, um escritório, 2 despensas, 2 casas de banho completas, 3 WC, uma cozinha equipada e 3 copas.
- Terraço privativo com acesso direto ao logradouro exterior.
DETALHES:
- Orientação solar: Nascente e Poente.
- Construção em granito e betão armado, que preservou a traça tradicional da arquitetura portuguesa.
- Existe a possibilidade de conversão para 2 Apartamentos T1 ou T1+1 por cada um dos 4 andares.
N-IMÓVEIS, a sua escolha certa desde 2015!
ATIVIDADE:
- Desenvolvemos a nossa atividade na Gestão de Propriedades e Investimento Imobiliário.
RELAÇÃO:
- Estabelecemos uma relação privilegiada com os nossos clientes, através da mediação imobiliária devidamente licenciada na compra, venda e arrendamento de imóveis.
NEGÓCIO:
- Trabalhamos de forma proativa todos os momentos do processo, para estruturar a melhor alternativa de negócio.
QUALIDADE:
- Os pensamentos comuns resultam em projetos de qualidade transformadores com o objetivo conjunto de realização pessoal.
COMPROMISSO:
- É para nós considerado o princípio base da nossa empresa, o compromisso que todos os clientes são tratados com a máxima dedicação, rumo a um resultado de excelência.
PROMOÇÃO:
- O profissionalismo está de mão dadas com a transparência nos nossos serviços diferenciadores, na promoção da venda do seu imóvel e na representação de quem vai comprar ou arrendar.
Venha visitar com a N-IMÓVEIS e sinta-se em casa!












