Jardim das Cavadas ? Rio Tinto
Gondomar, Rio tinto
Publicado às 03:53h, 17 Outubro 2025
Anúncio: 26034039541
Referência anunciante: FPS-30449B.1
280.000€
280.000€
Enviar email
Tipologia
T2
Estado
Usado
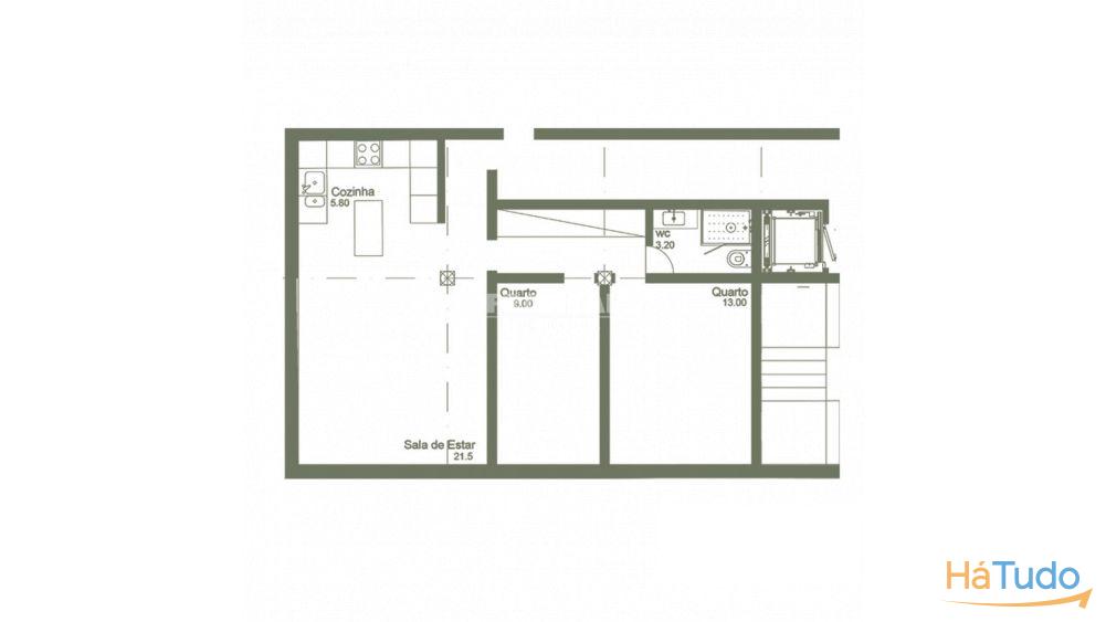
Área útil
67 m²
Casas de Banho
1
Classificação energética
A
Área bruta
68 m²
Ano de construção
-1
Características
Arquitetura ModernaCampoCondomínio FechadoElevadoresEscola Ensino básicoEspaços VerdesEstação de comboioEstação de MetroEstacionamento (Não Especificado)Farmácia
Descrição
Jardim das Cavadas – Rio Tinto
Empreendimento em condomínio fechado, com 12 apartamentos T1 e T2, distribuídos por 3 pisos.
Cada unidade dispõe de varanda com vistas desafogadas, garagem privativa e acesso a zonas verdes e piscina exclusivas para moradores.
Características principais:
- Tipologias: T1 e T2
- Varandas amplas
- Condomínio com piscina e jardim
- Garagem privativa
- 3 pisos, 12 frações
Localização estratégica:
- Estação de comboio de Rio Tinto: 850 m
- Estação de metro da Campainha: 850 m
- Hospital de S. João: 6 km
- Centro do Porto: 8 km
- Parque Urbano: 2 km
- Centro comercial: 13 km
- Aeroporto do Porto (OPO): 16 km
- Guimarães: 54 km
- Braga: 55 km
- Praias: 13 km
Excelente opção para quem procura qualidade de vida com mobilidade, lazer e segurança.
Frontal, desde 1990.
Carácter e Competência.
----
A FRONTAL distingue-se pela amplitude no serviço de qualidade prestado ao cliente e encara sempre os desafios com rigor e frontalidade.
Segmento Residencial - conta com uma vasta equipa de comerciais, dinâmica e ambiciosa que tem por missão prestar um serviço de excelência, alicerçada numa vasta experiência do mercado, respeitando os mais elevados padrões de ética, descrição e integridade, contribuindo assim para o crescimento da marca e da satisfação dos seus clientes.
Apoiados por um departamento autónomo, trata de todos os processos administrativos e de financiamento acompanhando o cliente até á escritura.
Através da sua rede de Sucursais, Know-How, Dinâmica e Inovação Comercial, apoiada em ferramentas de Marketing, a Frontal responde eficazmente aos desafios que os seus clientes e parceiros possam lançar.
Segmento Empresarial - concentra-se na oferta de soluções diferenciadas a empresas e a clientes empresariais que procuram um produto dotado de um alto grau de especificidade.
Segmento Empreendimentos – tem o seu foco especializado na comercialização de Empreendimentos, contemplando um Serviço Global de Venda, apoiado numa Estratégia de Marketing e Estudo de Mercado, definindo um posicionamento claro e ajustado à dinâmica da oferta e da procura tendo como foco superar as suas expectativas.
Outros anúncios relacionados que poderão ser do seu interesse!
Apartamento T2 em Construção, com Varanda e Garagem num Condomínio Fechado com Piscina, Gondomar
Porto
327.500€
T3 Novo Empreendimento Egas Moniz Residence 4, em Fânzeres Gondomar, com Varanda e Lugar de garagem!
Porto
268.000€















