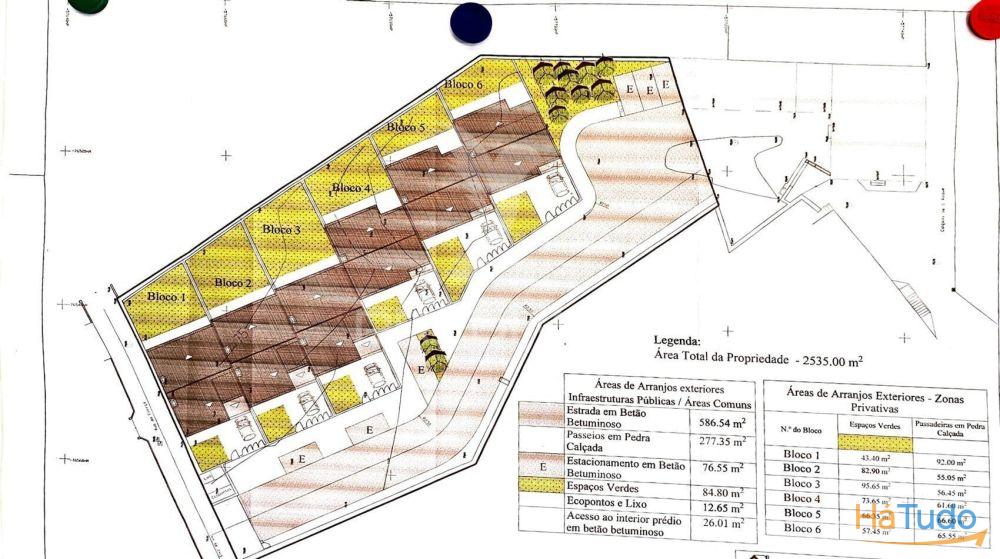
Terreno urbano com 6 moradias em construção
Alenquer, Abrigada e cabanas de torres
Publicado às 05:44h, 5 Março 2026
Anúncio: 26034069055
Referência anunciante: 058124
700.000€
700.000€
Enviar email


















