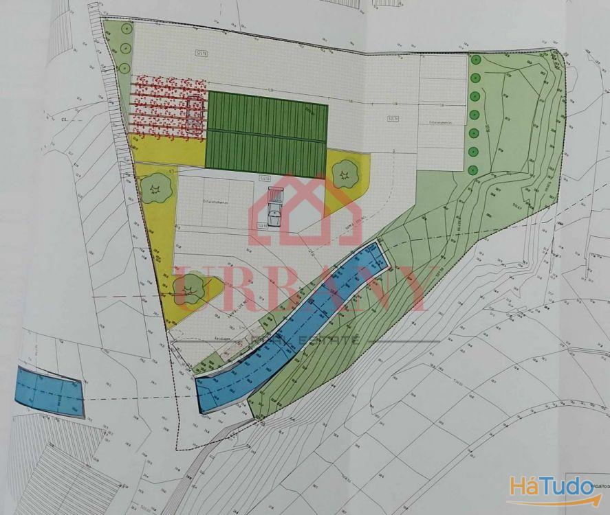
TERRENO P/ ARMAZÉM - FUNCHAL
Funchal, São gonçalo
Publicado às 10:40h, 28 Janeiro 2026
Anúncio: 26034061340
Referência anunciante: 04/2025
Sob Consulta
Sob Consulta
Enviar email








