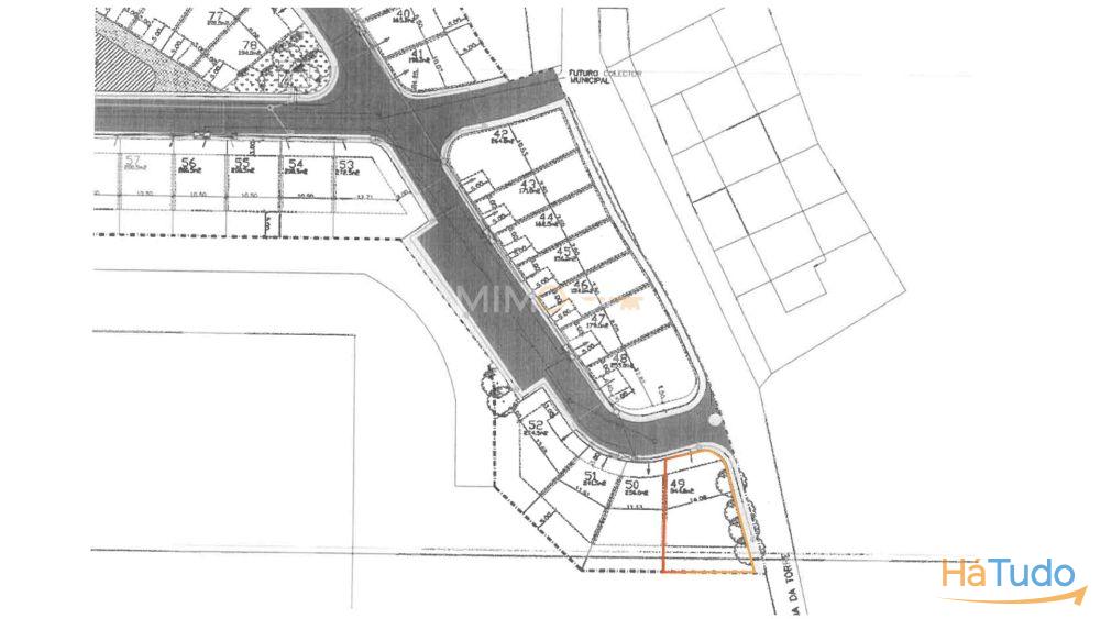
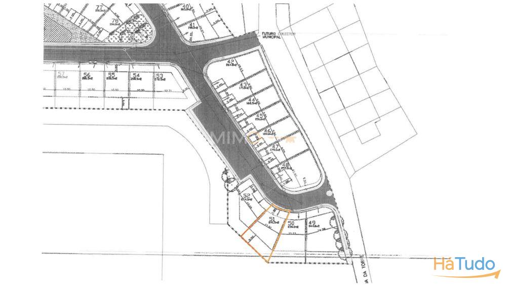
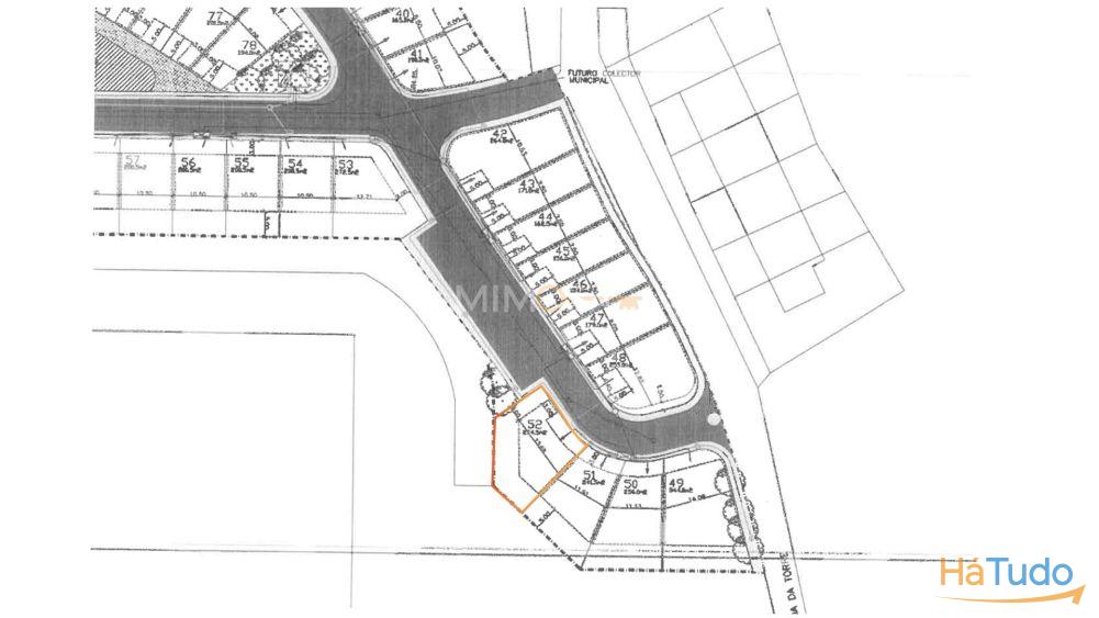
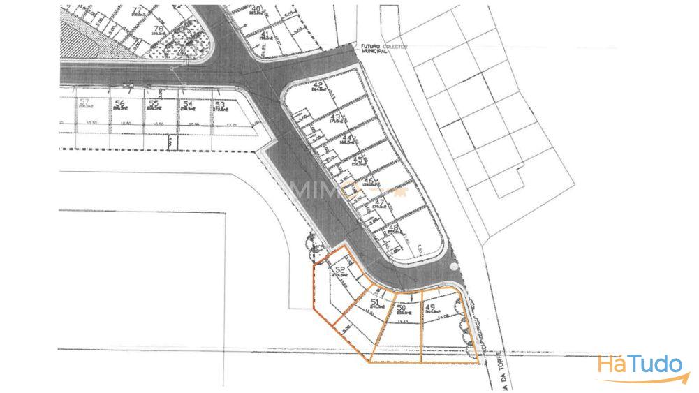
Terreno com Projeto de Loteamento ? Excelente Oportunidade em Lagos
Lagos, Lagos (são sebastião e santa maria)
Publicado às 02:00h, 17 Outubro 2025
Anúncio: 26033970631
Referência anunciante: T321
580.000€
580.000€
Enviar email


















