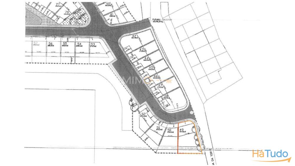
Oportunidade de Investimento ? Terreno para Construção em Lagos
Lagos, Lagos (são sebastião e santa maria)
Publicado às 02:01h, 17 Outubro 2025
Anúncio: 26033988334
Referência anunciante: T323
130.000€
130.000€
Enviar email















