Terreno com projecto aprovado p/6 moradias c/3700m2 Terreno c/ Projecto, Turcifal, Portugal
Torres Vedras, Turcifal
Publicado às 18:43h, 27 Janeiro 2026
Anúncio: 26044058250
Referência anunciante: TUIB.TR25
Sob Consulta
Sob Consulta
Enviar email
Tipologia
T4
Área útil
122 m²
Descrição
Lote de Terreno com projeto aprovado para construção de 6 moradias em banda. Localizado a 5min da entrada da A8, do campo do Golf e da cidade de Torres Vedras, assim como 20min das prestigiadas praias da costa de prata
São 6 moradias em banda de traça moderna com excelentes áreas, na privilegiada na 'Vila dos encantos' na localidade de Turcifal, com vista para a serra e junto do condomínio Quinta do Fez.
Este terreno é uma optima oportunidade de investimento, pois localiza-se numa das zonas mais requisitada do sector imobiliário, da zona Oeste, pela tranquilidade do campo e proximidade à Capital de Portugal , fica a 25min do aeroporto de lisboa
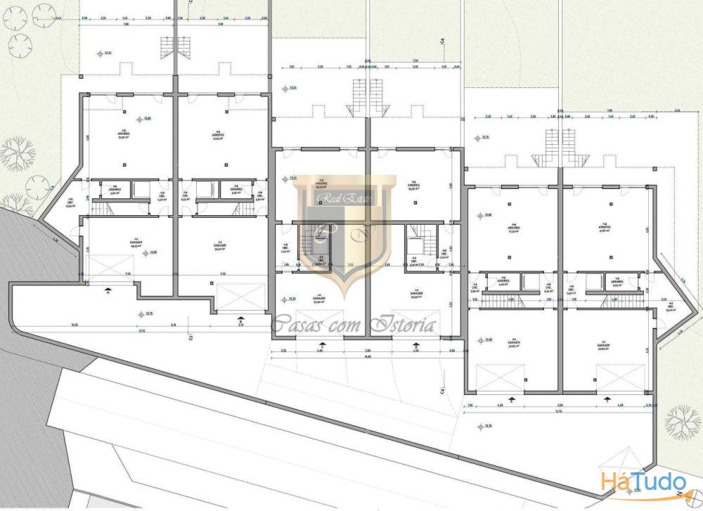
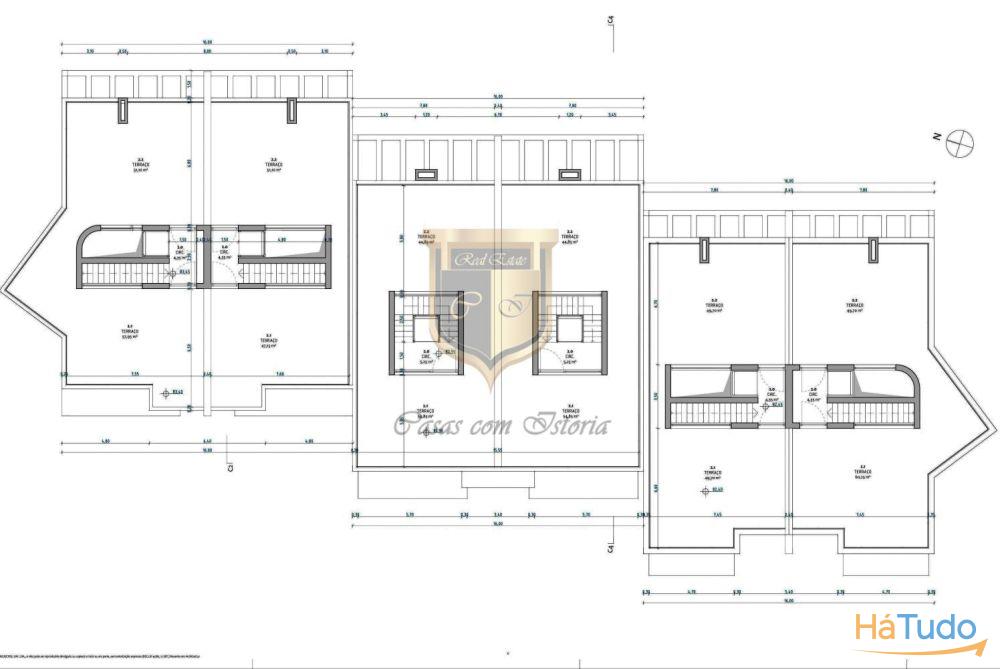
Detalhe do projeto;
Área do total do terreno - 3818 m2
Área implantação habitação - 1208 m2
Numero de moradias aprovadas - 6 (Tipologia T4 em banda)
Nº pisos acima da cota do solo: 2
Nº pisos cave: 1
Lugares estacionamento - 12 privados interiores + 5 exteriores
POSSIBILIDADE DE SER VENDIDO, também DA SEGUINTE FORMA:
- Um Lote com 1.870 m2?;
- Outro Lote com 1.830 m2?.
ou
- Um Lote com 2.040 m2 com a casa existente?);
- Outro Lote com 1.660 m2 (230.000.00 ?)
O Turcifal é dotado des serviços e comércio
Marque já a sua Visita !
A informação disponibilizada, não dispensa a sua confirmação nem pode ser considerada vinculativa.
INGLES:
Plot of land with approved project for the construction of 6 townhouses. Located 5 minutes from the entrance to the A8, the golf course and the city of Torres Vedras, as well as 20 minutes from the prestigious beaches of the Silver Coast
There are 6 modern townhouses with excellent areas, in the privileged 'Vila dos Encantos' in the town of Turcifal, overlooking the mountains and next to the Quinta do Fez condominium.
This land is a great investment opportunity, as it is located in one of the most requested areas of the real estate sector, in the West zone, due to its proximity to the Capital of Portugal, and 25min lisbon aeroport
Project detail;
Project Details;
Total Land Area - 3,818 m2
Housing Area - 1,208 m2
Number of Approved Homes - 6 (4-Bedroom Townhouse)
Number of Floors Above Ground Level: 2
Number of Basement Floors: 1
Parking Spaces - 12 Private Indoor + 5 Outdoor
POSSIBILITY TO BE SOLD, ALSO AS FOLLOWS:
- A Lot with ?1,870 m2;
- Another Lot with ?1,830 m2.
or
- A Lot with ?2,040 m2 with the existing house;
- Another Lot with ?1,660 m2 (?230,000.00)
Turcifal is equipped with services and commerce
Mark your visit !
The information provided does not waive its confirmation nor can it be considered binding.
Outros anúncios relacionados que poderão ser do seu interesse!
Excelente Terreno Rústico de 21.560m² em Torres Vedras, todo vedado e com eletricidade.
Lisboa
25.000€
Terreno Urbano, projecto aprovado empreendimento Santa Cruz, Torres Vedras', near the Beach, lisbon
Lisboa
800.000€
















