Terreno a 200 metros da praia, de Buarcos.
Figueira da Foz
Publicado às 15:11h, 19 Julho 2024
Anúncio: 26053809714
Referência anunciante: VF1831
1.250.000€
1.250.000€
Enviar email
Estado
Usado
Área útil
2450 m²
Descrição
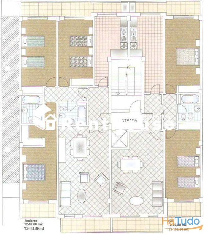
Terreno com plano de construção para 24 apartamentos sendo 12-T3 e 12-T2, planeados com layouts contemporâneos e design moderno em localização privilegiada da Figueira da Foz .
São 4 lotes totalizando 2.450 m², para construção de 4 edifícios de 3 pisos, parqueamento subterrâneo, com vistas desafogadas para cidade e Mar.
Marque já a sua visita!
Visite a RentHouse!!!
Ref. VF1831
O nosso objetivo principal é responder às solicitações de todos os clientes que depositam em nós a sua confiança!
Ritmo Dinâmico Mediação Imobiliária Unipessoal, Lda.
Lic.9031 AMI
Outros anúncios relacionados que poderão ser do seu interesse!
Terreno p/ Construção em Altura/Loteamento com Infraestruturas/Quinta do Grou/Tavarede
Coimbra
200.000€
Terreno p/ Construção em Altura em Loteamento c/ Infraestrutura/Quinta do Grou/Tavarede
Coimbra
266.000€
OITO LOTES DE TERRENO P/ CONST. EM ALTURA NA MESMA URBANIZAÇÃO-VENDA CONJUNTA-BOM INVESTIMENTO
Coimbra
1.450.000€
Terreno p/ Construção em Altura em Loteamento c/ Infraestruturas/Quinta do Grou/Tavarede
Coimbra
235.000€
Terreno p/ Construção em Altura em Loteamento Infraestruturado/Quinta do Gou/Tavarede
Coimbra
266.000€
Lote p/ Construção em Altura em Loteamento c/ infraestruruas/Quinta do Grou/Tavarede
Coimbra
235.000€
Terreno p/ Construção em Altura/Loteamento já Infraestruturado/Quinta do Grou/Tavarede
Coimbra
200.000€
Terreno p/ Construção em Altura em Loteamento Infraestruturado/Quinta do Grou/Tavrede
Coimbra
227.000€
Terreno para construção nas redondezas Cidade de Figueira da Foz. Coimbra, Figueira da Foz.
Coimbra
650.000€
Terreno urbano p/ construção de Moradia, praia Buarcos. Portugal, Buarcos, F. da Foz
Coimbra
165.000€






