Filtros

Projeto para Construção de Moradia Geminada T3 com Piscina ? Pinhal do General

Seixal, Fernão ferro
Publicado às 05:44h, 14 Janeiro 2026
Anúncio: 26034055305
Referência anunciante: 057566
460.000€
460.000€
Enviar email
Projeto para Construção de Moradia Geminada T3 com Piscina ? Pinhal do General
Projeto para Construção de Moradia Geminada T3 com Piscina ? Pinhal do General
Projeto para Construção de Moradia Geminada T3 com Piscina ? Pinhal do General
Projeto para Construção de Moradia Geminada T3 com Piscina ? Pinhal do General
Projeto para Construção de Moradia Geminada T3 com Piscina ? Pinhal do General
Projeto para Construção de Moradia Geminada T3 com Piscina ? Pinhal do General

Estado

Novo

Área útil

90.00 m²

Área do terreno

315.00 m²

Descrição
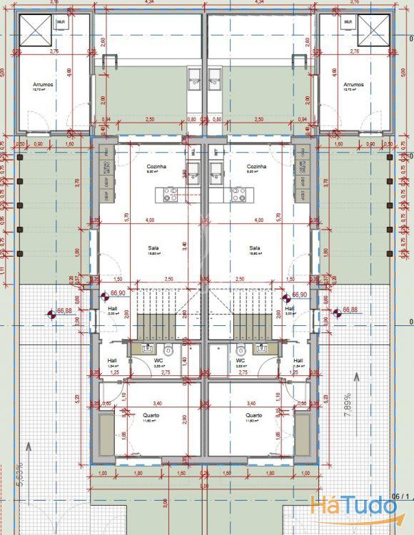
Projeto para Construção de Moradia Geminada moderna, com projeto aprovado, com a vantagem de permitir alterações e personalização, para que possa criar a casa exatamente como sempre idealizou.As moradia dispõem de 3 quartos, sendo 2 deles suítes, e foram pensadas para oferecer conforto, funcionalidade e qualidade de vida, com uma arquitetura moderna e acabamentos de excelente nível.No exterior, poderá desfrutar de um agradável jardim e de uma piscina privativa com 9 m², ideal para momentos de lazer em família. Conta ainda com um anexo para lavandaria e arrumos, trazendo maior praticidade ao dia a dia.A casa inclui kit solar termossifão para aquecimento de águas, está preparada para carregamento de carros elétricos e aposta em soluções que promovem eficiência energética e sustentabilidade.Localizado no Pinhal do General, numa zona tranquila e rodeada de espaços verdes, oferece ao mesmo tempo bons acessos às principais estradas, permitindo deslocações rápidas e fáceis.Uma excelente oportunidade para quem procura uma casa moderna, confortável e de grande qualidade, num ambiente calmo e familiar.Para mais informações, estamos disponíveis para ajudar.Predimed Imobiliária, Mediação Imobiliária, Lda.Avenida Brasil 43, 12º Andar, 1700-062 LisboaLicença AMI nº 22503Pessoa Coletiva nº 517 239 345Seguro Responsabilidade Civil: Nº de Apólice RC65379424 Fidelidade

João Bruno

Membro desde Outubro 2025

Licença AMI: 22503

Profissional
Todos os anúncios
Na chamada, informe que viu o anúncio no Há Tudo!
Obrigado!
Para ver o número indicado, por favor aceite os nossos cookies!
Obrigado!
Verificámos um elevado número de cliques nos números de telefone. Por favor, aquarde 60 minutos para poder continuar!
Obrigado!

Adicionar aos favoritos
Partilhar anúncio
Imprimir anúncio
Denunciar anúncio
Subscreva a nossa newsletter
Selecione uma ou mais áreas interesse para completar a subscrição.
Guardar Favoritos
Anúncio adicionado aos favoritos com sucesso!
Faça Login ou Registe-se para guardar os seus favoritos
0
Pesquisa guardada com sucesso!
Pretende receber alertas de novos anúncios?
Faça Login ou Registe-se para guardar as suas pesquisas
ou
  • Editar Alerta
    Defina um título personalizado para a sua pesquisa e configure como pretende receber os alertas.
    Seja o primeiro a receber as últimas NOVIDADES !
    Utilizamos cookies próprios e de terceiros para lhe oferecer uma melhor experiência e serviço. Para saber que cookies usamos e como os desativar, leia a política de cookies.
    Ao ignorar ou fechar esta mensagem, e exceto se tiver desativado as cookies, está a concordar com o seu uso neste dispositivo.
    AceitarSaiba mais
    Created by Dotec: Web & E-commerce