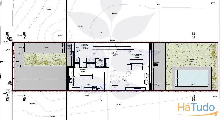
Moradia T3 em Banda na freguesia de Tenões - NOVA
Braga, Nogueiró e tenões
Publicado às 16:09h, 2 Julho 2024
Anúncio: 26043803852
Referência anunciante: 013-4046
420.000€
420.000€
Enviar email
















