Moradia T3+1 de Luxo em Canelas, Gaia
Vila Nova de Gaia, Canelas
Publicado às 16:09h, 27 Março 2024
Anúncio: 25063762201
Referência anunciante: 24.007.1
470.000€ Negociável
470.000€ Negociável
Enviar email
Tipologia
T3
Área útil
235.53 m²
Casas de Banho
3
Classificação energética
B
Área bruta
292.50 m²
Ano de construção
2025
Área do terreno
340.00 m²
Descrição
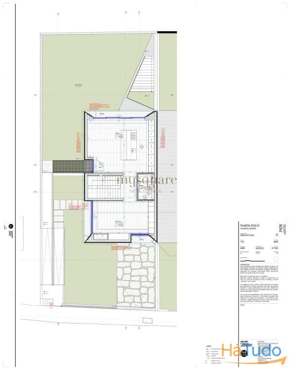
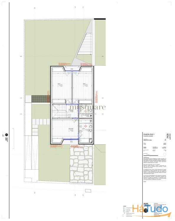
A Mysquare Real Estate tem o prazer de apresentar este projeto excepcional na Rua dos Prazeres em Canelas, Gaia.
Este é o local perfeito para a sua nova Moradia T3+1 de 3 frentes (cave, R/C + 1) com uma área bruta de construção de 292,5m2 e implantação de 101,25m2.
Com a frente virada a nascente e as traseiras a poente, esta é uma oportunidade única para famílias que procuram viver no meio da natureza e junto a uma das serras mais importantes em Gaia.
O período de execução da obra será de 24 meses.
Agende já a sua visita e comece a imaginar a sua vida neste cenário perfeito!
Este imóvel está disponível para partilha.
--
Somos uma imobiliária que nasceu com o objetivo de revolucionar o mercado imobiliário, oferecendo um serviço moderno e inovador.
Com uma forte presença online, a Mysquare Real Estate traz para a indústria conceitos inovadores, visando sempre a qualidade, transparência, proximidade e confiança com os nossos clientes.
Proporcionamos uma experiência personalizada e próxima, sempre com o objetivo de simplificar todo o processo de compra ou venda de imóveis, utilizando as melhores ferramentas disponíveis no mercado para divulgar os mesmos e obter resultados rápidos.
Para nós, uma casa é muito mais do que um imóvel. É um local onde refletimos sobre o passado, vivemos o presente e fazemos planos para o futuro. Entendemos que cada casa tem uma alma, uma história e é um projeto pessoal que reflete quem somos. Por isso, selecionamos casas especiais, com qualidades únicas, que fazem o matching entre aquilo que os nossos clientes procuram e o que o mercado tem disponível.
Na Mysquare Real Estate, a prioridade é transmitir confiança e profissionalismo em todos os momentos.
Mysquare Real Estate - Mudamos Vidas, realizamos Sonhos!
Outros anúncios relacionados que poderão ser do seu interesse!
Moradia para Restaurar em Grijó com lojas para comércio, anexos, garagem fechada, terraço e jardim
Porto
350.000€
Casa para rentabilizar, projeto feito pronto a dar entrada para legalizar em 7 moradias-Vila Nova Gaia
Porto
450.000€
Oportunidade Imperdível! Moradia 4 Frentes com Jardim T5, 2 suítes em Mafamude, Vila Nova de Gaia
Porto
620.000€
Fantástica moradia T3 com acabamentos de luxo próxima da praia!, Porto, Vila Nova de Gaia
Porto
560.000€
Moradia de Sonho de 4 frentes isolada junto ao Rio Douro em Oliveira do Douro T6 com piscina.
Porto
1.500.000€
Luxuosa Moradia T4, 1ªlinha do mar, em Zona Premium da Praia da Madalena - Vila Nova de Gaia
Porto
2.800.000€
Excelente moradia T5, em construção, amplo salão, terraço, jardim, varandas em todas as divisões
Porto
455.000€












