Moradia NOVA de 3 Frentes em São Pedro da Cova, Gondomar
Gondomar, Fânzeres e são pedro da cova
Publicado às 05:40h, 29 Julho 2025
Anúncio: 26044007996
Referência anunciante: D047.22/PGT
560.000€
560.000€
Enviar email
Tipologia
T3
Estado
Novo
Área útil
269.50 m²
Classificação energética
A
Área bruta
269.50 m²
Ano de construção
2024
Área do terreno
279.00 m²
Características
Estacionamento Ar-LivreGaragemJardimMuroVedaçãoTecto FalsoVarandaInternet fibraSuiteÁgua Quente SolarAlarmeAr CondicionadoAspiração CentralCombinadoCozinha equipadaEstores EléctricosExaustorFornoIsolamento TérmicoJanelas duplasMáquina de Lavar LouçaMicroondasMóvel-despenseiroPlaca VitrocerâmicaPorta Alta SegurançaPortão EléctricoRecuperador de CalorVídeo PorteiroVidros DuplosAuto-EstradaBancoBombeirosEscolaEspaços VerdesFarmáciaHipermercadoMercadoPiscinasPolíciaPosto de CombustívelVista para CampoÁguaLuzTV por Cabo Disponível
Descrição
Ref: D047.22/PGT
Bem-vindo/a ao novo empreendimento, Moradias das Regadas em São Pedro da Cova, Gondomar!
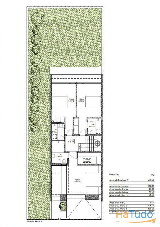
Esta moradia T3 de 3 frentes, em construção, tem uma área bruta de construção de 269,5m² num lote de terreno com 279m²
e ainda uma área exterior ajardinada, perfeita para desfrutar de momentos ao ar livre!
A moradia é distribuída em três pisos:
Cave:
- Salão com 38m2;
- Lavandaria;
- Casa de banho de serviço;
- Acesso direto ao jardim.
Rés-do-chão:
- Hall de entrada acolhedor;
- Sala de estar e cozinha em open-space;
- Varanda;
- Casa de banho de serviço;
- Garagem com capacidade para duas viaturas.
1º Piso:
- 3 Generosas suítes- 1 suíte com closet e as outras 2 com acesso à varanda.
Data prevista de conclusão- 2º trimestre de 2024.
Nos arredores:
- Escola EB 23 São Pedro Cova- 300m;
- Paragem de autocarros- 700m;
- Pingo Doce- 700m;
- Acesso à N209- 950m;
- Lidl- 2.2km;
- Parque das Serras do Porto- 4.1km;
- Câmara Municipal de Gondomar- 6km.
______________________
Notas:
1. Caso seja um consultor imobiliário, este imóvel está disponível para partilha. Não hesite em apresentar aos seus clientes compradores e fale connosco para agendar visita.
2. Para maior facilidade na identificação deste imóvel, por favor, refira o respetivo ID no início do anúncio.
A SOU é uma startup do setor imobiliário.
Acreditamos que este setor é ainda muito tradicional, pelo que, procuramos inovar digitalmente.
O foco da SOU é o Capital Humano, a promoção da confiança e de uma imagem de excelência no setor. Procuramos fazer melhor todos os dias.
Outros anúncios relacionados que poderão ser do seu interesse!
Moradia nova T3, com 2 frentes, localizada em São Pedro da Cova, no concelho de Gondomar
Porto
517.500€
Moradia V3, 2 frentes, com 3 suítes, garagem fechada para 2 carros, varandas, terraços e jardim.
Porto
490.000€
Moradia V3, 2 frentes, com 3 suítes, garagem fechada para 2 carros, varandas, terraços e jardim.
Porto
490.000€


















