Moradia individual T4 com Piscina, em Vila do Conde
Vila do Conde, Rio mau e arcos
Publicado às 15:12h, 16 Dezembro 2023
Anúncio: 26043681484
Referência anunciante: 240-M-24873
495.000€
495.000€
Enviar email
Tipologia
T4
Estado
Usado
Área útil
250 m²
Casas de Banho
4
Classificação energética
A
Área bruta
300 m²
Ano de construção
2026
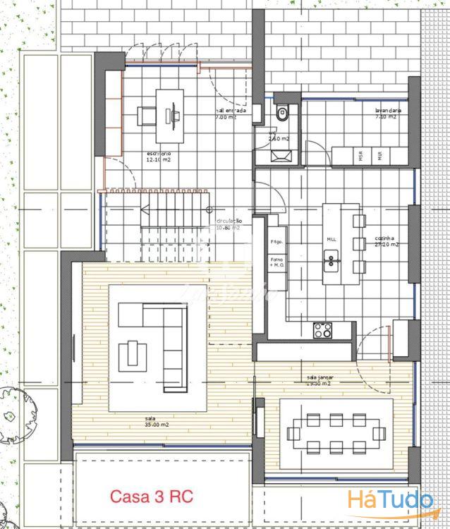
Descrição
Moradia individual de luxo, com piscina, aquecimento por piso radiante no rés do chão, aq. central no 1ºandar, sistema VMC (ventilação mecânicacontrolada) e bomba de calor para aquecimento de águas sanitárias.
Localizada na freguesia de Arcos, em Vila do Conde, apresenta-se como uma oportunidade única no mercado imobiliário. Com uma área bruta de 300m2, distribuída por dois pisos, esta propriedade conta com 3 suítes, mais um wc serviço no rés-do-chão, proporcionando todo o conforto e privacidade que uma família moderna procura.
Com término de construção no inicio de 2027, destaca-se pela sua luminosidade e amplitude de espaços. A cozinha com ilha e a sala com 54m2 de área, revestida a cerâmica, são apenas alguns dos pontos altos deste imóvel.
Com uma área de terreno de 900m2, esta propriedade oferece ainda um jardim envolvente bem cuidado e uma garagem fechada para dois carros, com portão automático. Muros de vedação da rua revestido a pedra para um acabamento mais nobre.
A classe energética A garante uma eficiência energética de topo, contribuindo para a sustentabilidade e poupança a longo prazo.
Inserida numa zona residencial tranquila, com vistas desafogadas para um pinhal, esta moradia beneficia de uma localização privilegiada, estando próxima de supermercados, escolas, infantários e com fácil acesso a transportes públicos. Esta é uma oportunidade única no mercado imobiliário atual.
Não perca a oportunidade de adquirir esta moradia de sonho, que alia conforto, modernidade e qualidade de vida num único espaço. Contacte-nos para mais informações e agende já a sua visita!
Info Adicional
Tipo de Cozinha: Standard
Orientação: Sul
Vista: Campo
Estacionamentos: Garagem fechada, no exterior do edifício, de 2 lugares;
Outros anúncios relacionados que poderão ser do seu interesse!
Moradia T6 com Licença de Alojamento Local e Restaurante em Touguinha Excelente Investimento
Porto
462.000€
Moradia V3 de Luxo, 2 Frentes Inserida num Condomínio de Moradias com Piscina, junto a praia de Vil
Porto
740.000€




















