Andar Moradia T2 em construção em Modivas, Vila do Conde
Vila do Conde, Modivas
Publicado às 18:08h, 28 Janeiro 2026
Anúncio: 26044062757
Referência anunciante: 240-M-25923
310.000€
310.000€
Enviar email
Tipologia
T2
Estado
Usado
Área útil
100 m²
Casas de Banho
2
Classificação energética
A
Área bruta
120 m²
Ano de construção
2025
Descrição
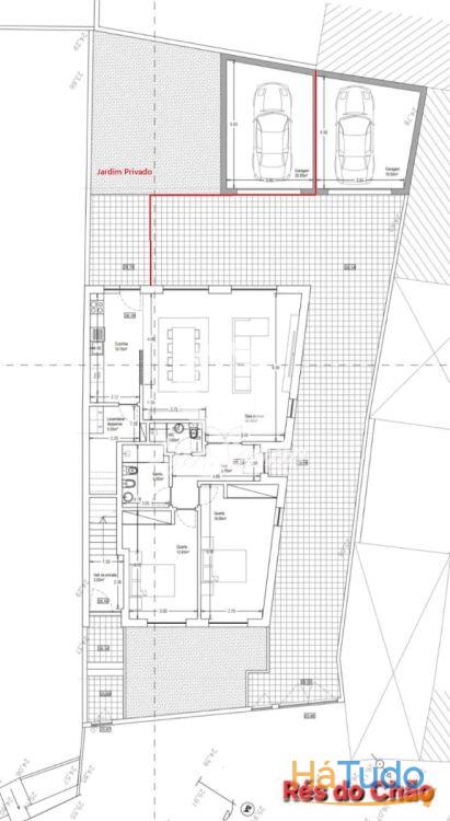
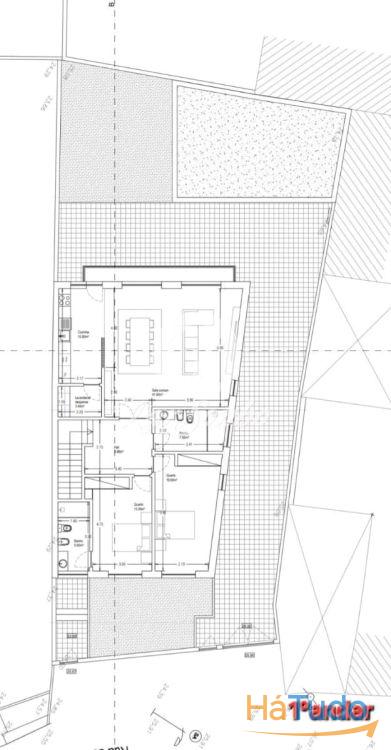
Andar Moradia T2 com Jardim Privado | Lançamento
Entrada desde 10%
Disponível também no 1º andar
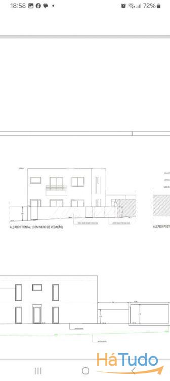
Este Andar Moradia T2 com 3 frentes (Nascente, Poente e Norte) oferece a privacidade de uma moradia com o conforto de um empreendimento moderno de apenas dois pisos.
Rés-do-chão com terraço/jardim privado
1 suíte
Ar condicionado completo
Bomba de calor
Estores elétricos
Videoporteiro
Possibilidade de personalizar acabamentos
Localização residencial tranquila, próxima de supermercados, escolas, farmácia, parque de lazer e centro de saúde, com excelentes acessos a transportes públicos e autoestrada.
PREÇO DE LANÇAMENTO
Possibilidade de permuta
Envie mensagem para saber valores e reservar a sua unidade!
Info Adicional
Orientação: Norte
Estacionamentos: Garagem fechada, no exterior do edifício
Outros anúncios relacionados que poderão ser do seu interesse!
Moradia T6 com Licença de Alojamento Local e Restaurante em Touguinha Excelente Investimento
Porto
462.000€
Moradia V3 de Luxo, 2 Frentes Inserida num Condomínio de Moradias com Piscina, junto a praia de Vil
Porto
740.000€















