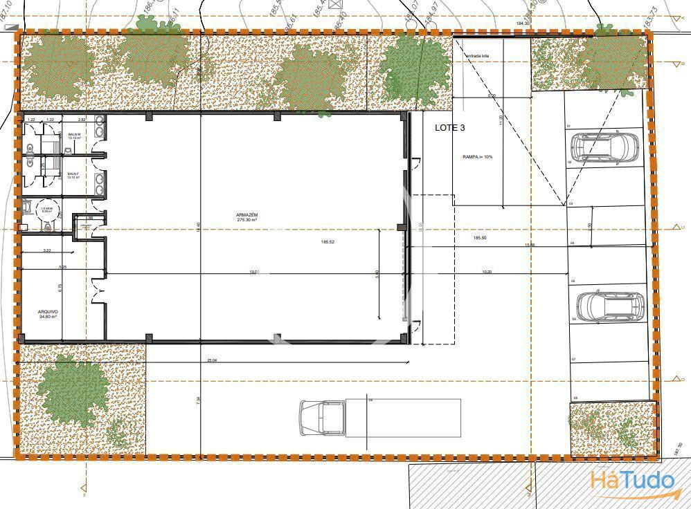
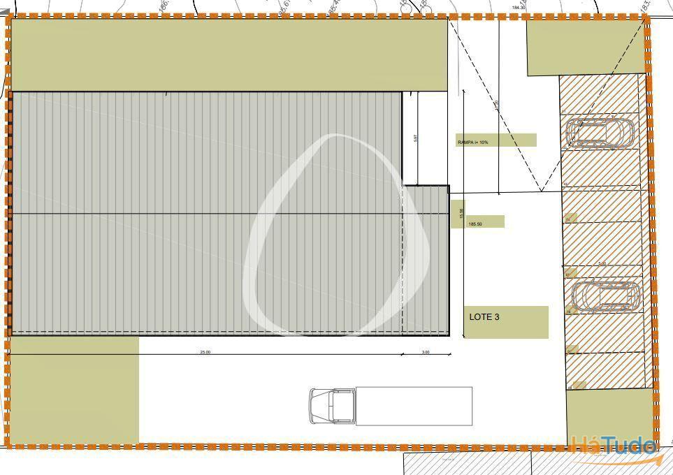
Armazém novo para arrendamento em Agualva-Cacém com 375 m² úteis em lote de 1114m2
Sintra, Cacém e são marcos
Publicado às 15:12h, 15 Abril 2026
Anúncio: 26044080860
Referência anunciante: CL0101-1626-WR
5.000€
5.000€
Enviar email





