Apartamento T3 à Praia de Leça da Palmeira
Matosinhos, Matosinhos e leça da palmeira
Publicado às 01:15h, 26 Agosto 2023
Anúncio: 26013623676
Referência anunciante: FPS-30234
620.000€
620.000€
Enviar email
Tipologia
T3
Estado
Usado
Área útil
112 m²
Casas de Banho
2
Classificação energética
A
Área bruta
149 m²
Ano de construção
2023
Características
AeroportoAr Condicionado (Não Especificado)Arquitetura ModernaAuto estradaBanheira simplesBombeirosCaixilharias: Aluminio/AluminioCentro de SaúdeElevadoresEsquadra de Polícia
Descrição
Este apartamento de tipologia T3 está localizado à beira-mar, mais precisamente a 200 metros da praia de Leça da Palmeira, tendo vistas diretas de mar.
A habitação está inserida em edifício de apenas três pisos, com um total de nove frações, cujas tipologias variam entre T1, T2 e T3.
O empreendimento localizado em Leça da Palmeira tem a sua fachada orientada a Poente, o que lhe permite ter uma ótima exposição solar.
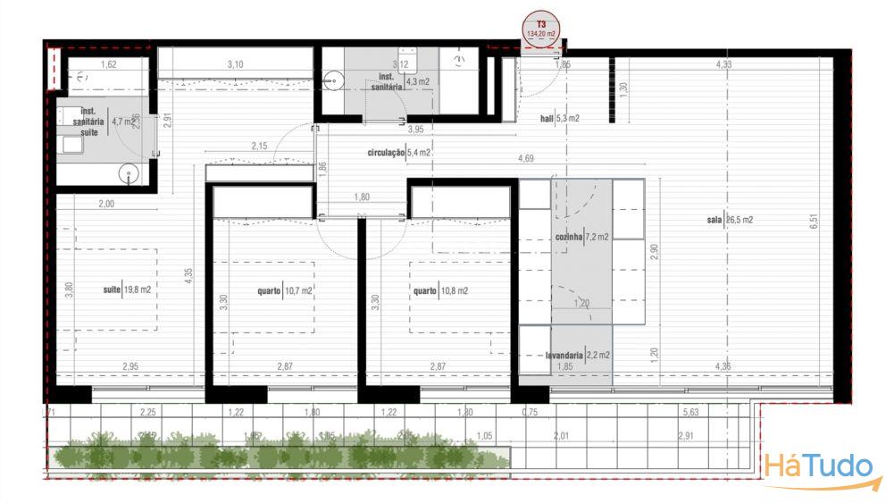
Destacando agora em pormenor o apartamento, este é composto pelas seguintes áreas e características:
• área total - 149 m2;
• área útil - 112 m2;
• área bruta dependente - 37 m2;
• hall de entrada generoso com roupeiro (5,5 m2);
• sala muito agradável e com bastante luminosidade e com acesso à varanda (26,50 m2);
• bela varanda (21 m2);
• cozinha com lavandaria incluída e equipada com frigorífico, fogão, forno, micro-ondas, máquina de lavar louça e bomba de calor (9,5 m2);
• hall dos quartos (8 m2);
• suite que contempla um grande closet e com igual acesso à varanda (24,50 m2);
• ambos os quartos com roupeiro embutido e acesso à varanda (11 m2);
• casa de banho completa com base de chuveiro (5 m2);
• ar condicionado;
• aquecimento central;
• dois lugares de garagem;
• arrumos;
Empreendimento intimista e diferenciador, localizado na segunda linha de mar, em zona residencial onde predomina a tranquilidade, que se destaca pela sua arquitetura moderna aliada a um design sofisticado, mas funcional, onde cada detalhe foi criado para que se reunissem as condições de eleição, para viver com uma qualidade de vida harmoniosa e relaxante no que respeita ao conforto do lar, e que se apresenta como a mais recente oportunidade de concretizar o seu sonho de viver perto do mar.
Prazo de conclusão de obra previsto para o primeiro trimestre de 2024.
Destaca-se de seguida o mapa de acabamentos do apartamento:
• climatização assegurada por sistema de aquecimento central por radiadores;
• aquecimento de águas por caldeira mural, com eficiência energética e gestão horária do aquecimento, apoiada por painéis solares;
• caixilharia em alumínio de corte térmico, com acabamento lacado;
• vidros duplos e sistema de correr;
• estores exteriores motorizados, em alumínio lacado cinza e com isolamento térmico;
• videoporteiro a cores;
• iluminação com sancas para luz indireta;
• porta de entrada de alta segurança;
• portas interiores até ao teto folheadas a madeira de carvalho;
• pavimentos multicamada em madeira de carvalho com 4mm de madeira nobre, na sala, nas circulações e nos quartos, os revestimentos em cerâmico tipo Emotion Ceramics em branco ou marfim;
• cozinha totalmente equipada com eletrodomésticos de alta gama da marca Zanussi;
• bancadas em granito negro "Krion";
• torneiras Roca;
Este imóvel é uma oportunidade de negócio, para quem deseja qualidade de vida habitacional acima da média alta.
Leça da Palmeira é conhecida pelas suas tradições piscatórias e fortes laços com o mar. Com as suas extensas praias e tendo dos melhores, senão os melhores restaurantes de peixe, considerada como destino de eleição para os surfistas, a sua famosa ´Piscina das Marés´ e a emblemática Casa de Chá da Boa Nova (Arquitetura de Siza Vieira), com duas Estrelas Michelin, para além de variados pontos de interesse de destaque, fazem de Leça da Palmeira um destino muito desejado para se viver, dada a sua excelência de qualidade de vida.
Frontal, desde 1990.
Carácter e Competência.
--
A FRONTAL distingue-se pela amplitude no serviço de qualidade prestado ao cliente e encara sempre os desafios com rigor e frontalidade.
Segmento Residencial - conta com uma vasta equipa de comerciais, dinâmica e ambiciosa que tem por missão prestar um serviço de excelência, alicerçada numa vasta experiência do mercado, respeitando os mais elevados padrões de ética, descrição e integridade, contribuindo assim para o crescimento da marca e da satisfação dos seus clientes.
Apoiados por um departamento autónomo, trata de todos os processos administrativos e de financiamento acompanhando o cliente até á escritura.
Através da sua rede de Sucursais, Know-How, Dinâmica e Inovação Comercial, apoiada em ferramentas de Marketing, a Frontal responde eficazmente aos desafios que os seus clientes e parceiros possam lançar.
Segmento Empresarial - concentra-se na oferta de soluções diferenciadas a empresas e a clientes empresariais que procuram um produto dotado de um alto grau de especificidade.
Segmento Empreendimentos – tem o seu foco especializado na comercialização de Empreendimentos, contemplando um Serviço Global de Venda, apoiado numa Estratégia de Marketing e Estudo de Mercado, definindo um posicionamento claro e ajustado à dinâmica da oferta e da procura tendo como foco superar as suas expectativas.
Outros anúncios relacionados que poderão ser do seu interesse!
Apartamento T1 Duplex de Luxo ? Mercado de Matosinhos, Nova Oportunidade de Vida Exclusiva
Porto
285.000€
Apartamento T0 Nova Construção ? Brito Capelo, Matosinhos | Exclusivo Domus Tributo Imobiliária
Porto
217.000€
Apartamento T2 em Construção ASTRO EMANUELLE SUL ? Conforto e Modernidade em Leça da Palmeira
Porto
325.000€
T2 Novo Empreendimento Green Park em Matosinhos a 10 Minutos da Praia e do Aeroporto!
Porto
275.000€











