Filtros

Terreno Venda em Santa Joana,Aveiro

Aveiro, Santa joana
Publicado às 02:03h, 30 Março 2025
Anúncio: 26043942833
Referência anunciante: AV2478
1.000.000€
1.000.000€
Enviar email
Terreno  Venda em Santa Joana,Aveiro
Terreno  Venda em Santa Joana,Aveiro
Terreno  Venda em Santa Joana,Aveiro
Terreno  Venda em Santa Joana,Aveiro
Terreno  Venda em Santa Joana,Aveiro
Terreno  Venda em Santa Joana,Aveiro

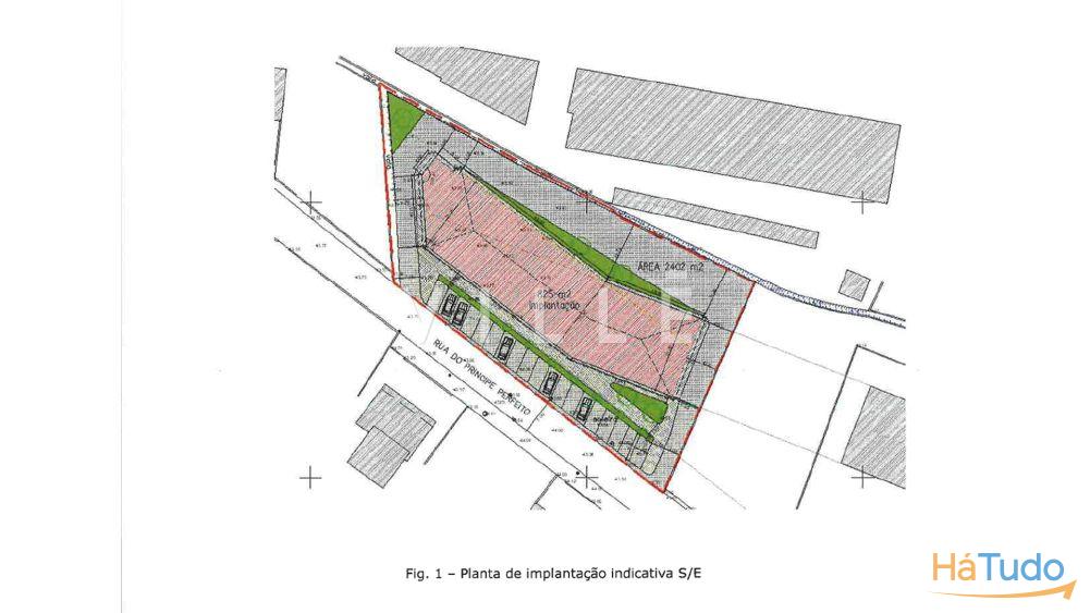
Área do terreno

2402 m²

Descrição
Terreno com 2402m2 e com PIP aprovado para construção de um edifício de habitação multifamiliar num terreno integralmente inserido em Espaço Habitacional Tipo 2 (EH2), segundo o Plano Diretor Municipal ? 1.ª Revisão (PDM).

Permite uma implantação até 80% da área edificável do lote ou parcela com um máximo de 4 pisos.

Propõe-se um edificio de Habitação Multifamiliar com respetiva área de implantação de 825m2 e área de construção bruta de 4010m2, sensivelmente. A edificação proposta segue os alinhamentos dos edifícios já existentes no local (edificios com r/c, 1º andar, 2º andar, 3º andar aproveitamento de cobertura inclinada).
Encontra-se previsto a consolidação dos passeios com 2,5m e lugares de estacionamento perpendiculares com a rua assim como uma faixa/alinhamento arbóreo com 1m de largura em toda a frente dos estacionamentos.
1. Caracterização do edificio proposto:
     - nº de pisos - prédio com cave em -1 e -2, r/c, 1º, 2º e 3º andar + aproveitamento de cobertura inclinada (50%);
     - área do terreno: 2402m2;
     - área de implantação do edifício: 825m2;
     - área bruta de construção: 4010m2 distribuidos da seguinte forma:
                    - 825m2 r/c;
                    - 910m2 1º andar;
                    - 910m2 2º andar;
                    - 910m2 3º andar;
                    - 455m2 sótãos;
O presente projeto de implantação e volumetria cumpre com o Enquadramento da pretensão Primeira Revisão do Plano Diretor Municipal de Aveiro.

Nolasco & Pinto, mediação imobiliária, Lda

Membro desde Agosto 2017

Licença AMI: 12479

Profissional
Todos os anúncios
Na chamada, informe que viu o anúncio no Há Tudo!
Obrigado!
Para ver o número indicado, por favor aceite os nossos cookies!
Obrigado!
Verificámos um elevado número de cliques nos números de telefone. Por favor, aquarde 60 minutos para poder continuar!
Obrigado!

Adicionar aos favoritos
Partilhar anúncio
Imprimir anúncio
Denunciar anúncio

Outros anúncios relacionados que poderão ser do seu interesse!

Terreno Aveiro
300.000€
Terreno T3+3 Aveiro
220.000€
Subscreva a nossa newsletter
Selecione uma ou mais áreas interesse para completar a subscrição.
Guardar Favoritos
Anúncio adicionado aos favoritos com sucesso!
Faça Login ou Registe-se para guardar os seus favoritos
0
Pesquisa guardada com sucesso!
Pretende receber alertas de novos anúncios?
Faça Login ou Registe-se para guardar as suas pesquisas
ou
  • Editar Alerta
    Defina um título personalizado para a sua pesquisa e configure como pretende receber os alertas.
    Seja o primeiro a receber as últimas NOVIDADES !
    Utilizamos cookies próprios e de terceiros para lhe oferecer uma melhor experiência e serviço. Para saber que cookies usamos e como os desativar, leia a política de cookies.
    Ao ignorar ou fechar esta mensagem, e exceto se tiver desativado as cookies, está a concordar com o seu uso neste dispositivo.
    AceitarSaiba mais
    Created by Dotec: Web & E-commerce