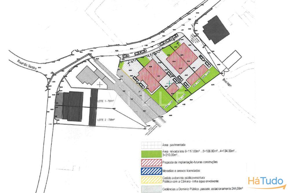
Terreno Urbano para construção de 4 moradias em Santa Joana
Aveiro, Santa joana
Publicado às 05:29h, 8 Março 2025
Anúncio: 25123917675
Referência anunciante: AV2422
160.000€
160.000€
Enviar email










