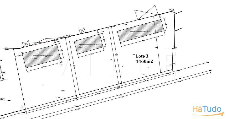
Terreno para venda na Gafanha da Nazaré
Ílhavo, Gafanha da nazaré
Publicado às 02:13h, 17 Outubro 2025
Anúncio: 26034039216
Referência anunciante: AV2579
74.000€
74.000€
Enviar email








