Terreno para contrução
Vila Real, São tomé do castelo e justes
Publicado às 20:25h, 27 Janeiro 2026
Anúncio: 26034059200
Estado
Novo
Área do terreno
5843 m²
Descrição
Terreno com viabilidade construtiva, sito na localidade de Águas Santas, freguesia de São Tomé do Castelo ? Vila Real, com área de 5.843 m2. Este dista de Vila Real a cerca de 15 minutos (13km), tendo o nó de acesso ao IP4 (Mouçós/Sanguinhedo) a cerca de 5 minutos, permitindo desta forma fácil mobilidade no acesso à cidade bem como ligação com as autoestradas A4 e A24.
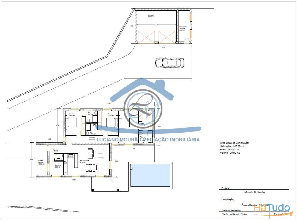
Para o local está estudada a implantação de uma moradia de tipologia V3 de arquitetura moderna/clássica com as seguintes características:
- Área de implantação da moradia, 180m2;
- Anexos (garagem e arrumos) área de implantação, 62m2;
- Piscina, área de implantação, 28m2.
As imagens são meramente informativas, baseadas no estudo efetuado, ao momento não existe projeto aprovado, contudo, é possivel a quando da venda aprovar o projecto e apresentar uma opção de venda Chave na Mão.
Para qualquer questão adicional, não hesite em contactar.










