Terreno industrial c/2044 m2 em Jesufrei ? V.N.Famalicão
Vila Nova de Famalicão, Lemenhe, mouquim e jesufrei
Publicado às 07:02h, 7 Agosto 2024
Anúncio: 26033815921
Área útil
2044 m²
Área do terreno
2044 m²
Descrição
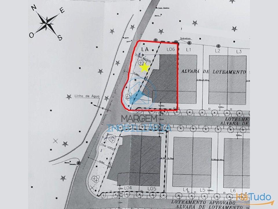
Zona em forte expansão, com bons e rápidos acessos à A3, nó de Cruz; a 14 km do centro de Braga; a 5 km do centro de Famalicão; a 30 minutos do Porto, Guimarães ou Barcelos.
Lote com 2044 m2, 2 frentes, com excelente visibilidade.
Inserido na zona industrial de Jesufrei, completamente infra estruturada e atual.
Rodeado por estradas largas e em bom estado, que facilitam o acesso a pesados e TIR´s, assim como, célere circulação entre freguesias, como Louro, Outiz, Nine, Sto.Adrião, Vale S.Martinho, Vale S.Cosme, S.Tiago da Cruz, Arnoso de Sta.Maria ou de Sta.Eulália.
- 2 pisos
- Área Implantação: 1200m2
- Área Bruta Construção: 1480m2
- Pé direito/Altura: 7,5m
Margem Imobiliária: Mediação na compra, venda e arrendamento de imóveis.
Oferecemos acompanhamento em todo o processo, tanto aos compradores, como aos vendedores, desde a primeira reunião até à conclusão do negócio/escritura através de » Consultoria Financeira: Créditos (novos e transferências) » Consultoria Burocrática (obtenção de documentação; contratos e escrituras; certificados energéticos; avaliações e estudos de mercado)
Na compra e na venda, que seja um bom negócio!
A Margem Imobiliária existe para o bem servir, adaptando-se às suas necessidades da forma mais personalizada e profissional que cada situação requer.
O objetivo não é que saiba o nosso nome, é merecer que nos trate por ?a minha imobiliária?!












