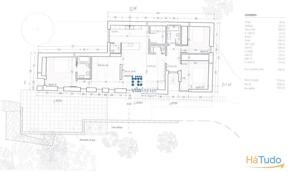
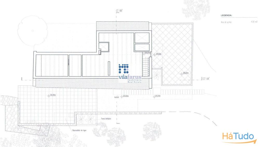
Terreno de 7.895m2 com projecto em análise
Faro, Conceição e estoi
Publicado às 10:40h, 28 Janeiro 2026
Anúncio: 26043430616
Referência anunciante: TER4913
450.000€
450.000€
Enviar email









