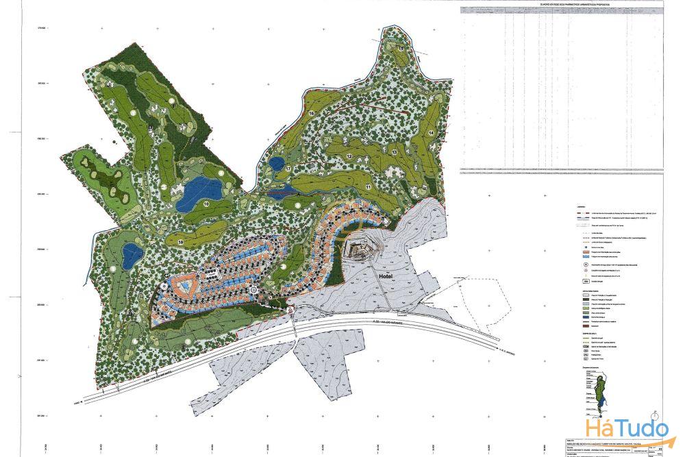
Terreno de 114ha para investimento Turístico em Monte Agudo -Santo Estevão- Tavira
Tavira, Luz de tavira e santo estêvão
Publicado às 06:49h, 12 Novembro 2022
Anúncio: 26043426080
Referência anunciante: PG49
6.000.000€
6.000.000€
Enviar email




















