Terreno com projeto aprovado
Marinha Grande, Vieira de leiria
Publicado às 01:35h, 20 Agosto 2025
Anúncio: 26024014426
Referência anunciante: VPLCM376
47.200€
47.200€
Enviar email
Tipologia
T4
Área útil
405 m²
Descrição
OPORTUNIDADE ? LOTE URBANO COM PROJETO APROVADO EM VIEIRA DE LEIRIA
Este é o local ideal para construir a sua casa de sonho!
Venha conhecer este lote urbano de 405m², inserido numa zona tranquila, de moradias recentes, em Vieira de Leiria ? com projeto aprovado para moradia T4 de arquitetura moderna, pronto a arrancar com a construção de imediato.
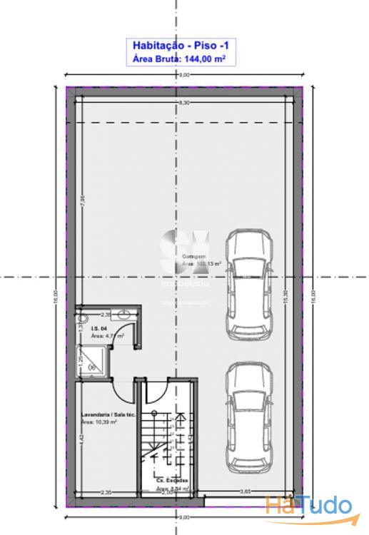
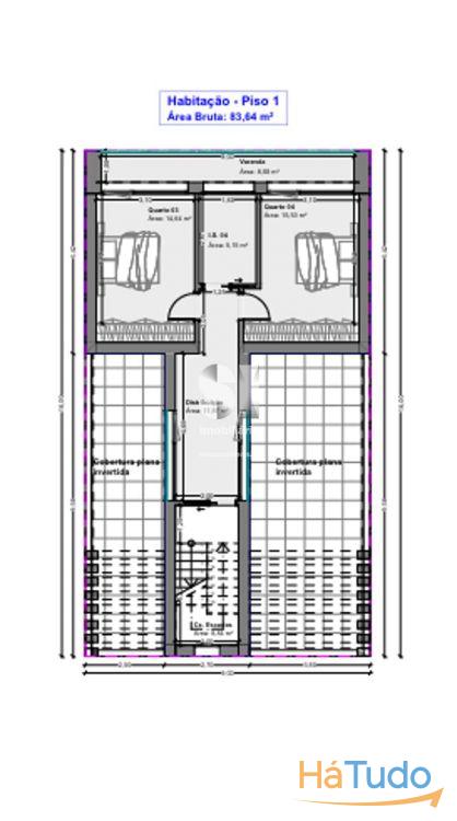
Detalhes do projeto aprovado:
- Moradia unifamiliar T4
- Arquitetura contemporânea, com linhas retas e funcionais
- 3 pisos: cave, rés do chão e 1º andar
- Área de implantação: 184m²
- Área bruta de construção: 444m²
- Área bruta dependente: 184m²
Ao redor, tem ao dispor todo o tipo de serviços e comércio, como, escolas, supermercados, farmácias, centro de saúde, transportes...
Excelentes acessos ao IC1, A17 e A8
A apenas 15 minutos de Leiria
A poucos minutos das principais praias da região, como Vieira, Pedrógão e São Pedro de Moel .
- Ideal para quem quer evitar atrasos e começar já a construção de uma moradia com espaço, conforto e design moderno.
- Zona em constante valorização, com ótimo potencial de investimento.
Entre em contacto e venha conhecer este terreno com tudo pronto para dar vida a sua futura casa, aquela com quem sempre sonhou!
Precisa de apoio no financiamento?
Somos intermediários de crédito devidamente autorizados pelo Banco de Portugal. Se é um requisito para avançar com o seu projeto, não espere mais, este é o momento!
Fale connosco ? podemos ajudar a encontrar a Solução Ideal para SI.
Outros anúncios relacionados que poderão ser do seu interesse!
Terreno rústico - Terreno com área aproximada de 3.000 m2 sito em zona sossegada; viabilidade de construção para moradia.
Leiria
65.000€
VENDE-SE----LOCALIZAÇÃO: M ARINHA GRANDE----Lote de terreno para construção urbana de uma moradia unifamiliar de 2 pisos, com a área de 480 m2, excelente exposição solar, localizado em zona recatada, na Urbanização Pinhal do Rei.
Leiria
49.500€
Terreno com viabilidade de construção urbana com a área de 2160 m2, sito em zona calma de Vieira de Leiria.
Leiria
43.000€
Oportunidade! Lotes de terreno com área de construção 350m2, em zona plana e calma. Centro da Cidade da Marinha Grande.
Leiria
34.000€
Localização: Praia da Vieira------Terreno rústico com a área de 479 m2, localizado a 300 M da praia.
Leiria
33.000€
Terreno com a área de 3.560 m2 localizado na zona de Vieira de Leiria, a 3 Km da Praia da Vieira e a 5 Km da Praia do Pedrogão.
Leiria
35.000€
Terreno com pinhal com a área de 2.000 m2, a, localizado na zona próxima do Eco-Marché e campo de Futebol de Vieira de Leiria
Leiria
8.000€
Localização: Vieira de Leiria------Terreno com a área de 8.380 m2, com viabilidade de construção para 19 moradias; Consulte-nos!
Leiria
300.000€
Localização: Vieira de Leiria----Terreno com a área de 1.087 m2 localizado em zona recatada dos Talhões, a 2.5 Km da Praia da Vieira; Consulte-nos.
Leiria
35.000€
VIEIRA DE LEIRIA----Terreno com a área de 780 m2 próximo de habitações, a cerca de 1 km do centro da vila.
Leiria
15.000€

















