Moradia T4 de Luxo com Vista Mar e Piscina, Lagos
Lagos, Lagos (são sebastião e santa maria)
Publicado às 01:08h, 11 Outubro 2023
Anúncio: 26033644165
Referência anunciante: VM1031
2.400.000€
2.400.000€
Enviar email
Tipologia
T4
Estado
Em construção
Área útil
300 m²
Classificação energética
A+
Ano de construção
2025
Área do terreno
568 m²
Características
Aquecimento Central EléctricoArca frigoríficaAr Condicionado - Pré Instal.ArmazémArrecadaçãoElectricidadeEsgotosEspaços VerdesEstoresEstores Eléctricos
Descrição
Situada numa das zonas mais deslumbrantes de Lagos, a poucos passos da Ponta da Piedade. Esta propriedade de luxo destaca-se pela sua localização privilegiada, acabamentos de alta qualidade e vista panorâmica sobre o mar.
Localização Imbatível
Com um enquadramento natural único, esta moradia está inserida numa área tranquila, mas muito próxima de tudo o que importa: - Praia do Camilo – 300 metros
- Praia Dona Ana – 500 metros
- Ponta da Piedade – 500 metros
- Centro histórico de Lagos e comércio local a curta distância
Características Principais - Área Bruta: 300 m²
- Lote: 568 m²
- Tipologia: T4
- Casas de Banho: 5
- Ano de conclusão previsto: Final de 2025
- Certificação energética: A+
Distribuição da Moradia
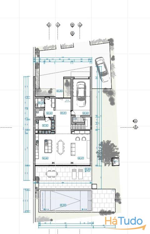
Rés-do-chão: - Sala de estar e jantar em open space, com ligação direta à piscina
- Cozinha moderna e totalmente equipada
- Lavandaria e área de arrumos
- Casa de banho de apoio
- Garagem com lugar de estacionamento incluído
Primeiro piso: - 4 suites, todas com roupeiros embutidos
- Cada quarto com acesso direto ao terraço através de portas de correr
- Varandas com vistas amplas para o mar
Terraço (2º piso): - Jacuzzi de luxo com vista panorâmica sobre o oceano
- Espaço ideal para relaxar e apreciar o pôr do sol algarvio
Equipamentos e Acabamentos - Pavimento radiante
- Ar condicionado em todas as divisões
- Sistema de domótica
- Estores e persianas elétricas
- Elevador
- Piscina e jardim privativo
- Orientação solar: Norte, Sul, Este e Oeste
Não perca a oportunidade de viver ou investir num dos locais mais encantadores do Algarve.
Agende já a sua visita!
Localização Imbatível
Com um enquadramento natural único, esta moradia está inserida numa área tranquila, mas muito próxima de tudo o que importa:
- Praia do Camilo – 300 metros
- Praia Dona Ana – 500 metros
- Ponta da Piedade – 500 metros
- Centro histórico de Lagos e comércio local a curta distância
- Área Bruta: 300 m²
- Lote: 568 m²
- Tipologia: T4
- Casas de Banho: 5
- Ano de conclusão previsto: Final de 2025
- Certificação energética: A+
Rés-do-chão:
- Sala de estar e jantar em open space, com ligação direta à piscina
- Cozinha moderna e totalmente equipada
- Lavandaria e área de arrumos
- Casa de banho de apoio
- Garagem com lugar de estacionamento incluído
- 4 suites, todas com roupeiros embutidos
- Cada quarto com acesso direto ao terraço através de portas de correr
- Varandas com vistas amplas para o mar
- Jacuzzi de luxo com vista panorâmica sobre o oceano
- Espaço ideal para relaxar e apreciar o pôr do sol algarvio
- Pavimento radiante
- Ar condicionado em todas as divisões
- Sistema de domótica
- Estores e persianas elétricas
- Elevador
- Piscina e jardim privativo
- Orientação solar: Norte, Sul, Este e Oeste
Agende já a sua visita!




















