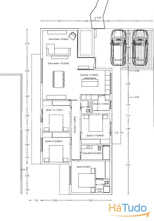
Moradia Isolada T4 Venda em São João de Lourosa,Viseu
Viseu, São joão de lourosa
Publicado às 01:16h, 15 Abril 2025
Anúncio: 25123951015
Referência anunciante: 1168
310.000€
310.000€
Enviar email










