Excelentes Moradias Novas em Santo Tirso!!!
Santo Tirso, St. tirso, couto (s. cristina e s. miguel) e burgães
Publicado às 07:04h, 18 Agosto 2020
Anúncio: 26032676038
Referência anunciante: CF0501
Sob Consulta
Sob Consulta
Enviar email
Tipologia
T3
Estado
Novo
Área útil
200 m²
Casas de Banho
2
Área do terreno
177 m²
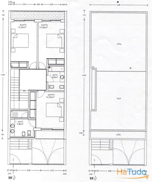
Descrição
Se procura Moradia para comprar em Santo Tirso, a Carlos Fontes Imobiliaria tem uma excelente opção em Santo Tirso:
Moradias com a possibilidade de escolher todos os materiais de acordo com o caderno de encargos.
Nao procure mais a Carlos Fontes Imobiliaria tem a solução para si em Santo Tirso.
MARQUE JÁ A SUA VISITA!!!
ACEITA PERMUTA!!!
As imagens aqui apresentadas não têm qualquer vinculo contratual, sendo meramente ilustrativas. A Carlos Fontes Imobiliária Lda. reserva-se no direito de introduzir alterações que considere necessárias ao critério de Gestão de Projeto e do Arquiteto durante a elaboração do Projeto de Execução ou no decorrer da execução da obra.













