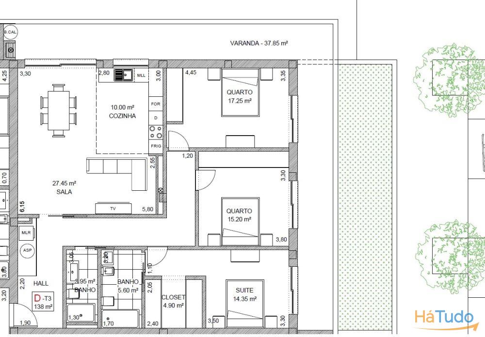
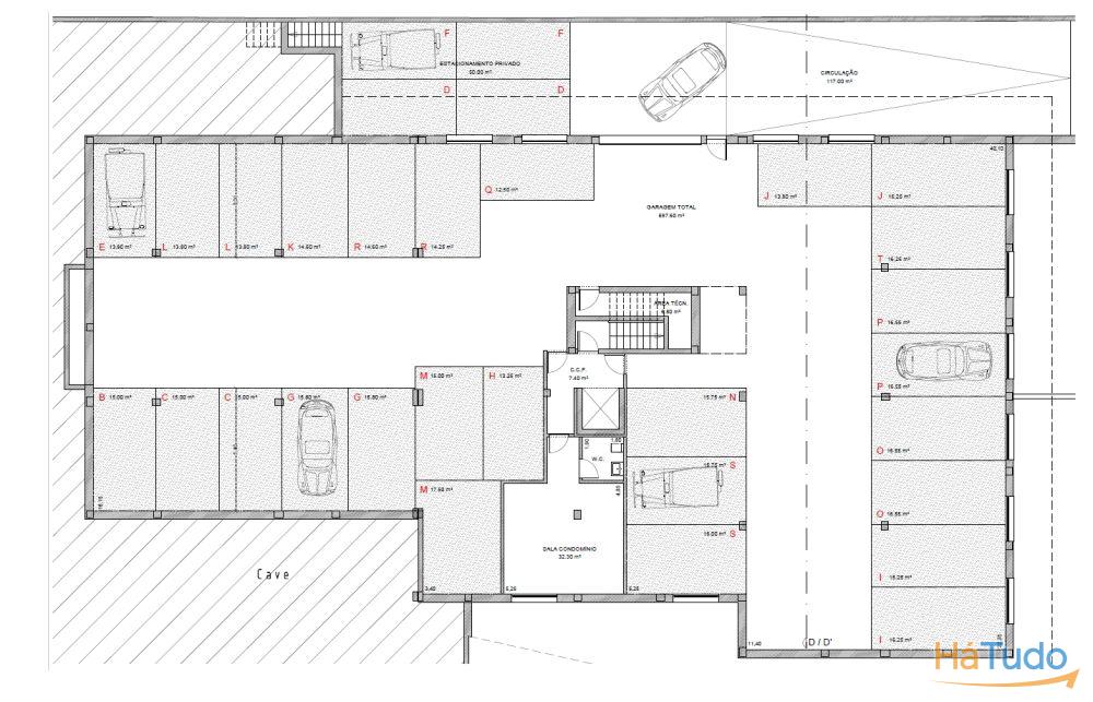
Apartamento T3 Venda em Loureiro,Oliveira de Azeméis
Oliveira de Azemeis, Loureiro
Publicado às 19:53h, 8 Março 2025
Anúncio: 26033923667
Referência anunciante: TRI511-D
253.000€
253.000€
Enviar email







