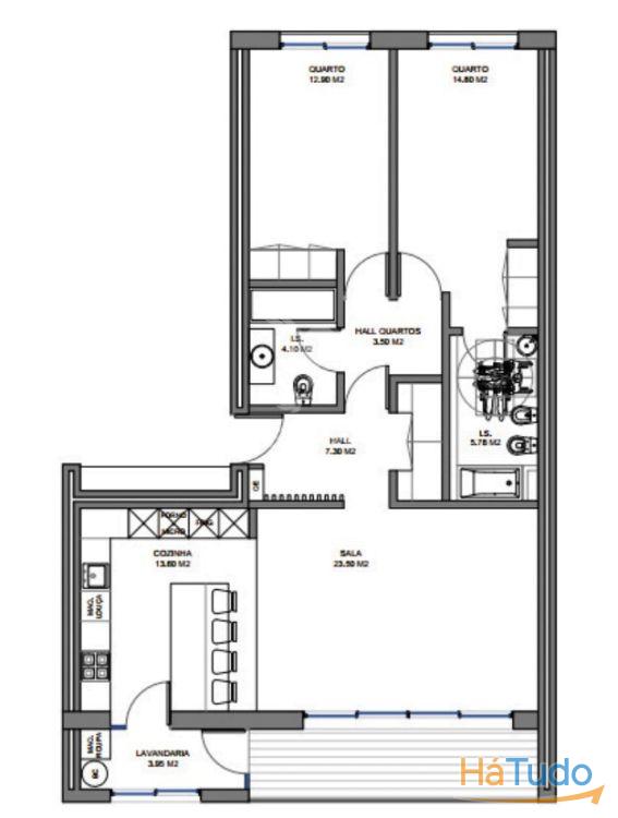
Apartamento T2 - Valongo
Valongo, Valongo
Publicado às 05:45h, 30 Agosto 2025
Anúncio: 25124017547
Referência anunciante: 054738
280.000€
280.000€
Enviar email


















