1280 | Quinta Monte Crasto | Gondomar
Gondomar, Gondomar (são cosme), valbom e jovim
Publicado às 07:20h, 19 Julho 2024
Anúncio: 26033809579
Estado
Usado
Área útil
825 m²
Área do terreno
5078 m²
Descrição
Imóvel Quinta Monte Crasto ? casa mais terreno
Área total de 5078 m2 toda murada + moradia
Localização: Rua Monte Crasto 202, em São Cosme, Gondomar
A quintinha com 1660 m2 esta inserida no terreno com 5078 m2 mas que esta agora em processo de destaque de parcela.
A parcela que se pretende vender esta totalmente murada, têm uma área total de 1660 m2, sendo 825 m2 de área urbana com índice de construção de 0,8, neste terreno está uma moradia conforme fotos que se anexam, a área construída é de 386 m2, sendo a área de ocupação de solo de 182m2, assim pode ser construído mais um edifício com 274m2 ou ampliar-se o existente.
A restante área dos 835 m2 é considerada área verde, mas é expectável que as alterações do PDM façam este terreno passar para urbano, permitindo assim mais construção.
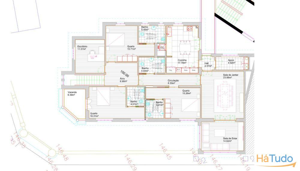
O edifício existente foi remodelado em 2020, e é constituído por dois pisos, o primeiro piso, têm uma área de 204 m2, sendo constituído por:
? 3 Quartos suites
? 1 Wc de serviço
? Escritório
? Cozinha
? Varanda
? Lavandaria
? Sala de Estar
? Sala de Jantar
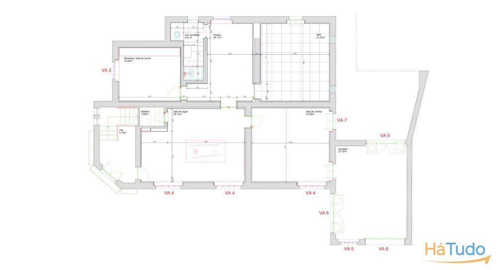
O piso do r/c têm uma área de 182 m2, e está em remodelações, e será constituído por:
? Escritório
? SPA com banheira de hidromassagem
? Ginásio
? 1 Wc
? Sala de Cinema
? Salão de Jogos
? Piscina interior
No interior do terreno há zona de estacionamento para alguns carros.
O edifício está equipado com:
? Iluminação LED
? Sistema de domótica
? Ar condicionado em algumas divisões
? Estores Elétricos
? Vídeo porteiro
? Sistema de videovigilância






